PUTTING A NEW PIECE UPON AN OLD GARMENT?
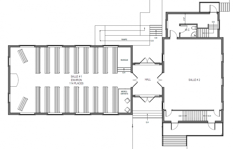
N0! Thanks to the idea of a talented architect, a new building will be added, yes, but jointed to the oldest church in Canada. The old building will be preserved, and its original quality will be conserved. As you can see the result in this rendering, it will be beautiful, practical, accessible, and large enough to welcome the families that now are moving, and want to move, to the country, and happy to find in the small village of South Stukely, Quebec, a warm, vibrant and loving SDA community.
If this is a project that excites you, will you help us to reach our goal of 80,000$ to make this dream come true? Trusting that this is a God-willed project, we sincerely THANK YOU.
 
 
 
 
You can help us with a donation
Please make sure to use the "Church Expansion Project" in the "Local Offerings" category as illustrated bellow. Thank you!

